Configuración estándar de la máquina tipo IS
Sistema de control FLEXLINE
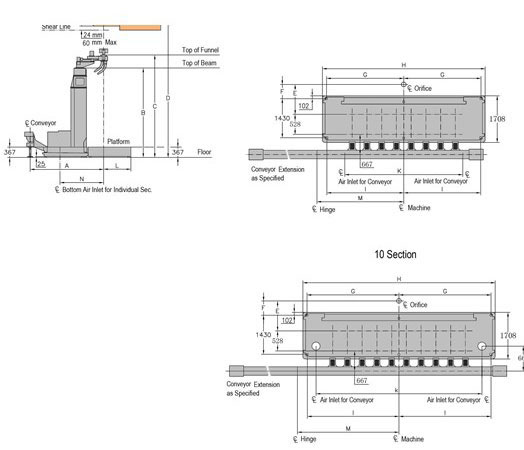
Nuevo tipo de sistema de entrega
Conexiones en el sistema de aceite para premoldes y moldes
Premolde con soportes protectores
Mecanismo de enfriamiento de los moldes vertical
Mecanismo de émbolo de cambio rápido
Pinza de extracción de cambio rápido
Mecanismo de soplado de cambio rápido
Montante ancho para la máquina
Caja de válvula electroneumática 21 (EPVB)
Transportador con cadena silenciosa
Eyector eléctrico
Sistema de lubricación automática con ajustes de tiempo y racionamiento
Configuraciones opcionales de la máquina formadora de envases
Distribuidor de gota servo
Distribuidor de gota mecánico
Mecanismo de inversión con amortiguación hidráulica
Mecanismo de inversión servo eléctrico
Mecanismo de extracción de amortiguación hidráulica
Mecanismo de extracción servo eléctrico
Mecanismo de placa inferior con formación de vacío (opcional)
| Máquinas IS | Soplado-soplado | Prensado-soplado |
| Peso | 30g~1200g | 30g~1000g |
| Diámetro máximo del cuerpo (VertiFlow) | 150mm | |
| Altura máxima de la botella (enfriamiento vertical) | 315mm | 240mm |
| Diámetro máximo de la botella | 50mm | 90mm |
| Media | Presión (Bar) | Consumo por sección m3/min (6 sections) |
Consumo por sección m3/min (8 sections) |
| Aire de operación de baja presión | 2.1 | 13.5 | 18 |
| Aire de operación de alta presión (soplado-soplado) | 2.8~3.1 | 2.5 | 3.4 |
| Aire de operación de alta presión (prensado-soplado) | 2.8~3.1 | 9.7 | 12.9 |
| Aire a alta presión (Gas inducido de la caja de válvulas) | 3.1 | 0.003 | |
| Vacío | 850mbar | 4.7 | 6.3 |
| Aceite lubricante | 80 | 7.5 L/día | 10 L/día |
| Agua de refrigeración | 2.1 | 10 L/min | 10 L/min |

| Alimentador | 910SG |
| S | 400.5 |
| Cantidad y tamaño de secciones de la máquina IS | 6 | 8 |
| mm | mm | |
| A (cadena silenciosa) | 2362 | 2362 |
| B | 3269 | 3269 |
| C | 3510.5 | 3510.5 |
| D | 3700 | 3700 |
| E | 1168 | 1168 |
| F | 567 | 567 |
| G | 2264 | 2798 |
| H | 4828 | 5896 |
| I | 2250 | 2784 |