
| Sistema de control FLEXLINE | |
| Distribuidor de gota servo con guía de embudo | |
| Sistema de suspensión de entrega, escape de aire | |
| Conexiones en el sistema de aceite para premoldes y moldes | |
| Premolde con soportes protectores | |
| Mecanismo de inversión con amortiguación hidráulica | Opcional |
| Mecanismo de inversión servo eléctrico | |
| Mecanismo de enfriamiento de los moldes de flujo vertical | |
| Mecanismo de placa inferior con formación de vacío | Opcional |
| Mecanismo de émbolo de cambio rápido | |
| Mecanismo de extracción de amortiguación hidráulica | Opcional |
| Mecanismo de extracción servo eléctrico | |
| Pinza de extracción de cambio rápido | |
| Montante ancho para la máquina | |
| Caja de válvula electroneumática 26 (EPVB) | |
| Transportador con cadena silenciosa | |
| Eyector eléctrico, Eje doble | |
| Mecanismo de enfriamiento de los premoldes con control de encendido y apagado | Opcional |
| Sistema de lubricación automática con ajustes de tiempo y racionamiento | |
| Cambio de doble gota a triple gota (159) | |
| Métodos de producción de envases de vidrio | |
| Soplado-soplado | |
| Prensado-soplado | |
| Prensado de cuello estrecho-soplado | |
| Soplado-soplado | Prensado-soplado | Prensado de cuello estrecho-soplado | ||
| Máquina IS | ||||
| Diámetro máximo del cuerpo (VertiFlow) | 76mm | |||
| Diámetro máximo del cuerpo (Enfriamiento horizontal sin vacío) | 90mm | |||
| Diámetro máximo del cuerpo Vacío | 76mm | |||
| Altura mínima de la botella | 105mm | 86mm | ||
| Altura máxima de la botella (con VertiFlow) | 287mm | 268mm | ||
| Diámetro máximo de la botella | 48mm | 70mm | 38mm | |
| Media | Presión (Bar) | Consumo por sección (Doble gota) (Nm3/min) |
Consumo por sección (Triple gota) (Nm3/min) |
| Aire de operación de baja presión | 2.1 | 1.0 | 1.0 |
| Aire de operación de alta presión | 3.1 | 1.0 | 1.0 |
| Aire a alta presión (Gas inducido de la caja de válvulas) | 4.0 | 0.003 | 0.003 |
| Aire soplado (Soplado-soplado) | 3.1 | 2.4 | 2.7 |
| Aire soplado (Prensado-soplado) | 3.1 | 3.2 | 3.8 |
| Vacío | 150mbar | 0.2 ~ 0.3 | 0.2 ~ 0.3 |
| Enfriamiento de la cuba | 1200 mm H2O | 95 | 90 |
| Refrigeración vertical para molde y refrigeración horizontal para premolde | 1200 mm H2O | 75 | 70 |
| Transportador | 600 mm H2O | 12 | 12 |
| Aceite lubricante | 80 | 1.3 L/día | 1.3 L/día |
| Agua de refrigeración | 2.1 | 15 L/min | 15 L/min |

| Alimentador | BLD89 × 2 |
| S | 400.5 |
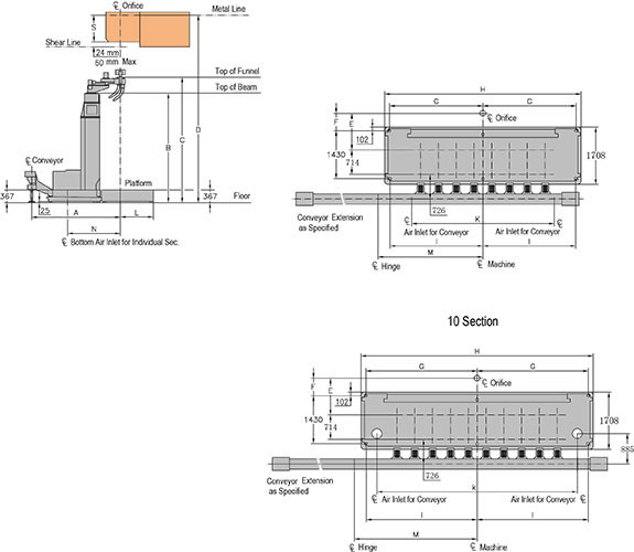
| Cantidad y tamaño de secciones de la máquina IS | 4 | 6 | 8 | 10 |
| mm | mm | mm | mm | |
| A | 2608 | 2608 | 2608 | 2608 |
| B | 3369 | 3369 | 3369 | 3602 |
| C (Distancia del centro de distribución 89mm) | 3861 | 3861 | 3861 | 4053 |
| D (Recomendado) | 5500 | 5500 | 5500 | 5700 |
| E | 1168 | 1168 | 1168 | 1168 |
| F | 587 | 587 | 587 | 587 |
| G | 1730 | 2264 | 2798 | 3332 |
| H | 3660 | 4828 | 5896 | 6964 |
| I | 1716 | 2250 | 2784 | 3318 |
| K | 2306 | 3236 | 4304 | 6010 |
| L | 1402 | 1402 | 1402 | 1402 |
| M | 2292 | 2826 | 3360 | 3430 |
| N | 1521 | 1521 | 1521 | 1311 |
| Peso de la máquina | 17T | 23T | 29T | 48T |